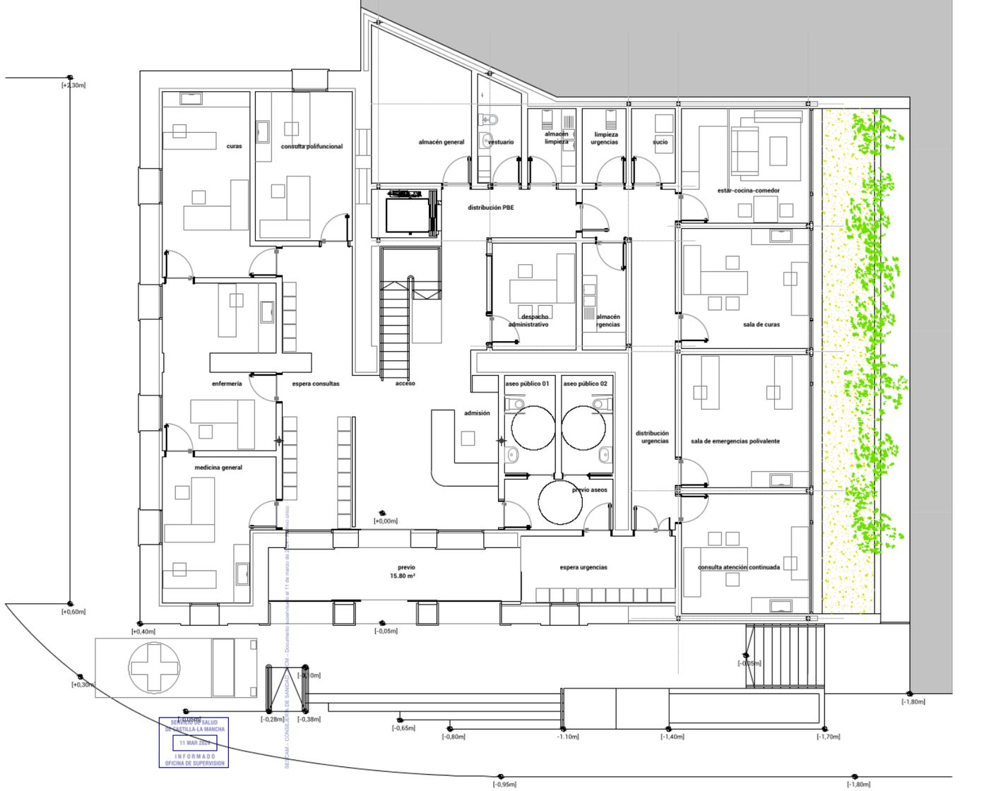
Reforma y ampliación del Centro de Salud de Cardenete

En el ámbito de la obra pública, Construcciones Carrascosa de Cuenca hemos comenzado los trabajos de ampliación y de reforma del Centro de Salud de la localidad de Cardenete, en la provincia de Cuenca.
El edificio es un volumen íntegro que tiene como medianera una edificación de vivienda en colindancia con la iglesia parroquial. Su delimitación parte de las colindancias y viales existentes, a partir de las mismas, una vez demolida la edificación existente se configurará la ampliación.
Aquí os compartimos unas fotografías y unos planos del proyecto.